Oppidum engineering

Oppidum engineering

To ensure your Oppidum meets the very highest standards in design, security, engineering and construction we have gathered a team of the world's most celebrated minds in these respective fields. This will deliver an Oppidum that is beautifully crafted and designed entirely in your image. This approach also harnesses cutting edge technologies and technical practices to deliver peerless security for the people and objects you love the most.

Shelter design fundamentals

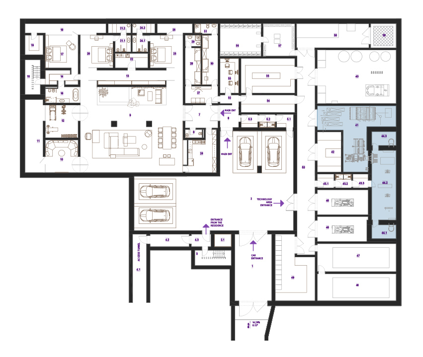
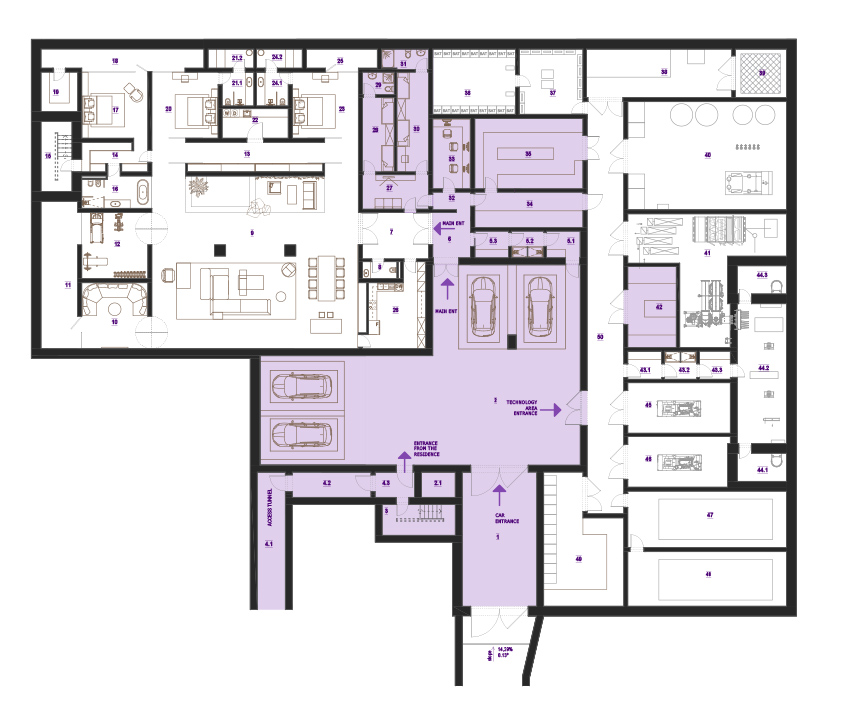
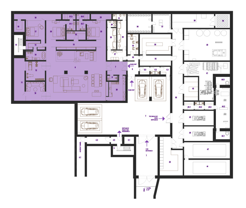
Living area

Living area

Living area is designed to meet exact client's requirements and absolute comfort in peace time regime and also for emergency use.

The following amenities could be included – majlis, lounge, garden, art gallery, vault, cinema room, swimming pool, fitness, etc. In principle, everything according to the wishes of the client.

Technical area

Technical area

Size of the technical area is determined based on the size of the living area, number of occupant, length of the stay and required additional technological amenities.

The technical area typically includes air filtration system, diesel generators, batteries, water treatment system, cooling and heating system, electric control room, fuel and water tank, etc.

In addition, security control room, compressed air stores, hydroponic farming system, etc. can be included.

Garage and service area

Garage and service area

Garage and residential service area is determined based on the client's requirements and may include staff accommodation, storage, laundry, garage, etc.. The size of the storages are depending on the number of occupants and the length of stay.

The number of car access ramps is designed according to the wishes of the client and the spatial possibilities of the plot.

Blast protection

Blast protection

The structure and all equipment on the perimeter of the blast protection zone must have a specified level of blast protection.

Blast protection equipment generally has a higher level of protection than the structure.

Only certified special bunker equipment such as blast doors, blast valves, etc. are used on the perimeter of the blast protection zone.

Blast lock zone can be designed at the entrance for cars to allow car entry even in the emergency time, when the shelter is in blast protection mode.

Gas tightness

Gas tightness

Gas tight protection comprises airtight structures (reinforced concrete structure), special gastight equipment and positive pressure difference.

All penetrations through the gas tight line of the shelter must be sealed and ducts fitted with a gas tight closing device or pressure relief valves to control the airflow inside the duct or to seal the duct hermetically . 

Only certified special bunker equipment is used to ensure gas tightness such as gas tight doors, gas tight valves, pressure relief valves, etc.

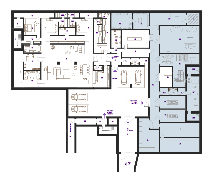
Air filtration

Air filtration

Air filtration system comprises intake and exhaust vertical air shaft and ventilation tunnel. This is not part of the gas tight zone because untreated air from the outside environment is passing through.

Certified special bunker equipment is used to protect against chemical, biological, radiological or nuclear hazards, such as CBRN filters incl. automatic detection system, overpressure meter, overpressure valve, etc.

Energy and power back up

Energy and power back up

Two diesel generators are generally proposed to provide 100% back up of the power supply. Each diesel generator is located in its own fire room in case one of them is damaged or the room is compromised.

Additional back up is typically provided by batteries. The battery system can also be used in high emergency mode, when the shelter is completely sealed without connection to the surface environment (complete concealment), incl. supply air and exhaust air.

Fuel tank size is primarily determined based on length of stay.

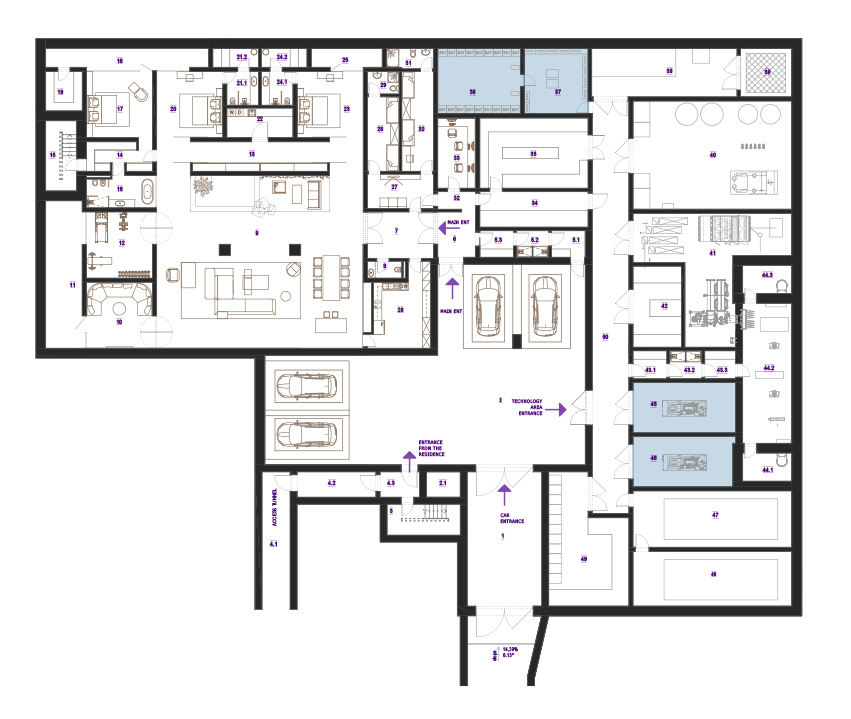
Emergency exits

Emergency exits

Minimum 3 emergency exists should be proposed within the layout.

Actual number of exits are determined based on the size of the building and clients expectation.

Air intake and exhaust shafts are generally used as emergency exists.

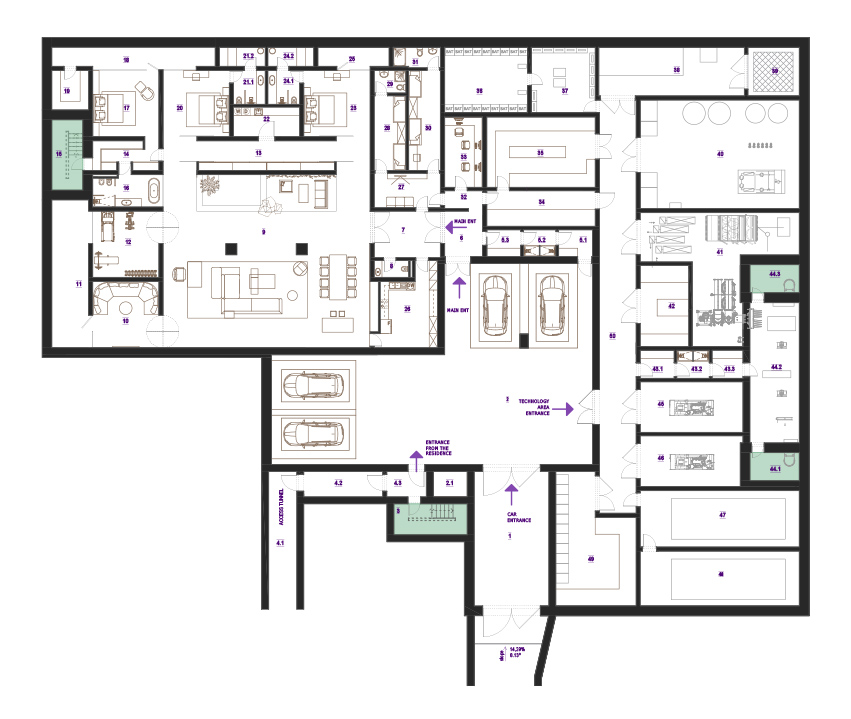
Decontamination rooms

Decontamination rooms

In the event of an emergency, all gas tight doors must be closed and access to the gas tight zone must be through the decontamination room only.

A decontamination room allows residents to enter the gas tight zone even if the outside air is contaminated. The decontamination room consists of changing / undressing room, shower and changing / dressing room.

Each part of the decontamination room has a different overpressure with an increasing value towards the gas tight zone to prevent contaminated air from entering the shelter.

Process of planning Oppidum

Blast protection

The level of blast protection is determined based on detailed threat and risk analysis and the client's requirements. Detailed structural calculations and simulations are undertaken to design the structure to withstand required load, including simulations for direct hit if required.

Level of blast protection determines thickness of the perimeter RC structure which typically ranges from 500mm up to 3000mm.

Construction

Construction

The geological and hydrological conditions have a major impact on the design and implementation of the construction. Thus we carry out multiple surveys in the early stage of the project.

The construction is generally designed as an open excavation with a temporary retaining structure at the perimeter. The main structure is a reinforced concrete shell designed for static and dynamic loads, blast or shock waves, seismicity and other factors. As required, high density concrete with magnetite aggregate can be used for radiation shielding.

Oppidum can be designed to the highest NATO STANAG 2280:2016 level of protection.

Focus*
Vat number